TEL: 095-081-8888
LINE ID : dice2541

สินค้าของเรา...Elevator...Dumbwaiter


 

Dumbwaiter
Flexible and Changeable Multi-dimensional Space
FUJI dumbwaiter provides small freight elevators in various buildings with prompt, convenient, economical transport. It greatly saves time and labor resources. It is widely applicable for delivering food, drink, dining ware, daily products etc. in hotel, restaurant, bank, hospital etc.

Rich models and specifications
Load range: 100KG ~ 300KG door modes are divided into windowsill type with direct goods entry / exit and floor type which is convenient for freight cart entry/exit.


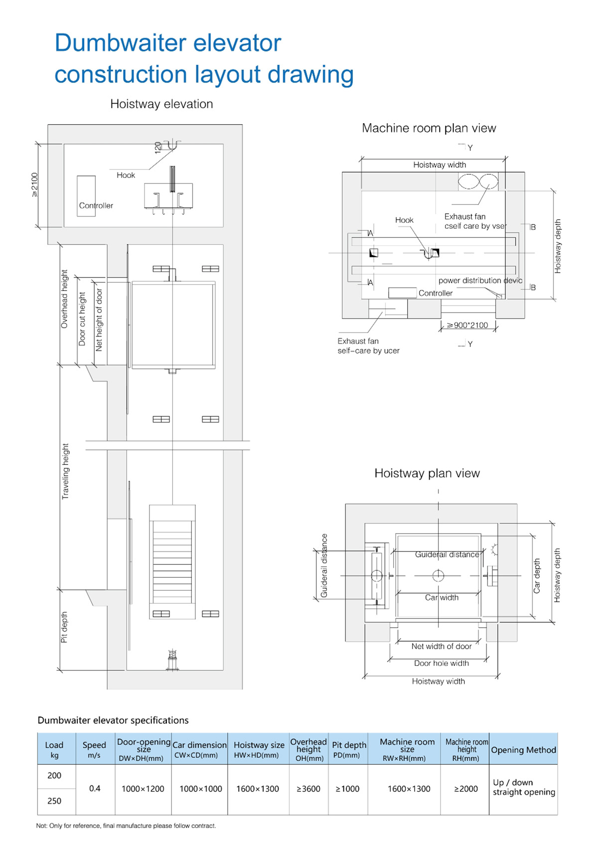
:: Construction & Technical Specification ::

:: Car Decorator ::




left
left