TEL: 095-081-8888
LINE ID : dice2541

สินค้าของเรา...Elevator...Freight Elevator


 

Freight Elevator
It bears any heavy load at ease It dares to meet any challenges
Properties of FUJI freight elevator are better than that of other same kind elevators.Outstanding structure and high strength car design are superiorly applicable for various operational environments. From factory; production line; exhibition hall to warehouse; shopping center; FUJI freight elevator always offers safe and effective goods transport plans.


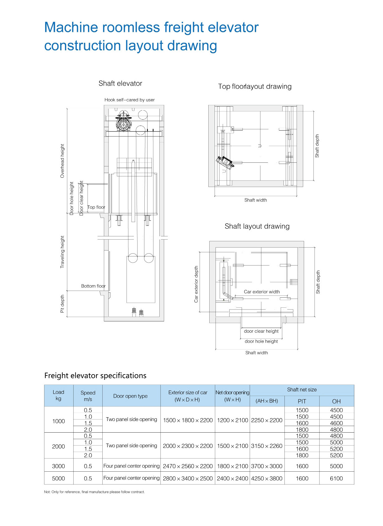
:: Construction & Technical Specification ::



 



 


left
left