TEL: 095-081-8888
LINE ID : dice2541

สินค้าของเรา...Elevator...Home Elevator


 

Home Elevator
The perfect and comfortable life

FUJI home elevator can offer you a pleasant ambience,special inverter system control the running position,upgrading the comfort feeling all-sided-Low noise,easy installation,accomplish you perfect living condition.Not only reduce the cost of designing and building on machine room, also make best use of your builiding room. Small occupying space.no hoistway,safe and durable elevator is provided for you by FUJI .

FUJI home elevator is a duplex and multi-functional and exquisite home ideal elevator, but also the elderly,sick ,disabled home the best on the lower transport.


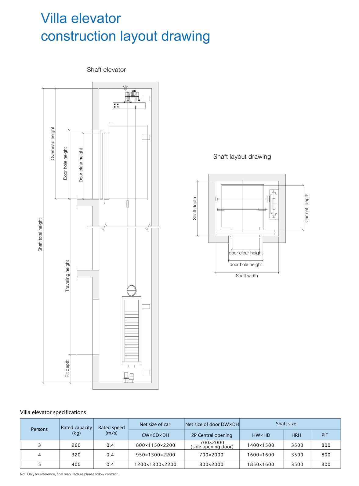
:: Construction & Technical Specification ::

:: Car Decorator ::




left
left